

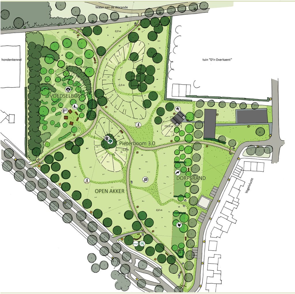
Plan landschapspark D’n Steenakker ontworpen door Barbara Roozen.
Op deze plek lagen vroeger akkers die samen de Gilzesche Steenakkers heetten. Al in het cijnsboek van 1456 (cijns = belasting) vind je de benaming ‘Steenacker’. Het woord staat voor slechte en moeilijk te bewerken grond met veel keien en keitjes. Leg je twee plattegrondjes – van 1762 en 1996 – naast elkaar, dan zie je dat dit landschapspark de laatste punt van die Gilzesche Steenakker beslaat. Het andere overgrote deel is in de loop van de jaren al met woningen bebouwd: de wijk de Steenakkers.

Situatie Steenakkers in 1762 en in 1996 (getekend door Jan de Vet). Wat in 1762 nog Bredaghsenweg heette, is nu de Ridderstraat (Afbeeldingen archief Heemkring Molenheide).
De driedelige Pieter- of Petrusboom die op de heuvel middenin het nieuwe park staat, is de fysieke link met de historie. Volgens een akte stond er in 1416 net naast dit parkgebied al een ‘Sente Petersboem’. In 1851 schreef Meester Schrauwen (hoofd van de school in Gilze), dat er in vroeger tijden processies gehouden werden, van de kerk naar de boom en weer terug. Dit gebruik stamde al uit de tijd van de Germanen en werd aangepast aan de christelijke traditie. Tegen het einde van de 18e eeuw moet de boom verdwenen zijn. Ontwerper van het landschapspark, Barbara Roozen, schrijft op haar website: ‘Het is nu tijd om een oude traditie om te vormen naar een nieuwe, zodat de bomen vereerd blijven. Door een fijne plek onder de boom te creëren kan de mens in contact komen met de natuur. Maar het zou ook een ‘selfie-boom’ kunnen worden, waar mensen zichzelf vereren met een mooie instagramfoto, met de boom als mooie groene achtergrond’.
Wat in 1456 ook al in het cijnsboek stond, was de aanduiding ‘aen de Warande’. Nóg een vingerwijzing naar de geschiedenis die je terugvindt in het huidige stratenplan (aangrenzend aan het park). Een heel bijzondere geschiedenis, want hiermee kom je bij de Prinsen van Oranje uit. Warande staat voor ‘beschermd jachtgebied’ en vóór 1795 had de Prins van Oranje hier in dit bosgebied als Heer van Breda het jachtrecht. Alleen de heer of zijn gemachtigde mochten er op grofwild zoals edelherten, wilde zwijnen en reeën jagen.
Bij hun jachtgebied hadden de Prinsen van Oranje in die tijd een jachthuis staan, dat het Hooghuis werd genoemd. In het Middelnederlands betekent Hoochhuus, ‘slot of kasteel’. Waarschijnlijk was het hier een stenen jachtslot met verdieping, dat uitzicht gaf op het jachtterrein. In 1758 stond het slot er volgens bepaalde geschriften nog, in 1802, bij het indelen van de jachtklampen (het gebied waar iemand tegen betaling mocht jagen) was het verdwenen. Lang bestond het vermoeden dat het in de nabijheid van dit park heeft gestaan. Meester Schrauwen schreef in 1854 zelfs specifiek ‘waar Ridderstraat en Biestraat bij elkaar komen’. Recenter onderzoek wijst meer in de richting van Klein Zwitserland, wat overigens hemelsbreed ook niet zo ver van het park verwijderd is; de A58 bij wijze van spreken schuin oversteken en je bent er. Tot 1940 bleef het Warandegebied voornamelijk uit dennenbos bestaan. De Duitsers rooiden de bomen in het eerste jaar van hun bezetting voor de aanleg van het militaire vliegveld (toen de Fliegerhorst).
En dat militaire vliegveld brengt ons bij de Hudson bommenwerper, die tijdens de Tweede Wereldoorlog in het huidige wandelgebied brandend neerstortte. In de nacht van 1 juni 1944 om 01.30 uur haalde het afweergeschut van het vliegveld het laagvliegende Engelse toestel neer. Het was een spionnenvliegtuig met geheime bestemming en had ook twee Nederlanders aan boord. Het was de bedoeling dat zij met hun parachutes zouden landen om vervolgens contact te maken met het Nederlands verzet. De Engelse piloot en zijn navigator stuurden de Hudson – waarschijnlijk door een navigatiefout – dwars over vliegveld Gilze-Rijen. Het toestel sloeg te pletter in de korenvelden. Alle zes inzittenden kwamen om het leven.
Het neergestorte toestel (foto archief Heemkring Molenheide)
En al die tijd had niemand er een idee van dat in dit gebied onder de grond mooie archeologische vondsten op ontdekking lagen te wachten. In 2000 was Thom Smekens daar tijdens grondwerkzaamheden op zijn land net naast D’n Steenakker, gelukkig wel alert op. Zeven werkdagen bogen archeologen zich vervolgens over de grond van het vroegere Kraayenbosch, schraapten laagje voor laagje af en legden negen skeletten, zes knopen, stofresten en spijkers (van de houten kisten) bloot. Het waren resten uit de Tachtigjarige Oorlog (1568-1648). Om precies te zijn uit 1624/1625 van het leger van Spinola. Deze Spaanse generaal belegerde lange tijd de stad Breda en had (ook) in Gilze zijn kampement opgeslagen. De militairen gingen dood aan ziekte of schotwonden.
Archeologen aan het werk bij de opgravingen in 2000 (foto archief Heemkring Molenheide)
Aangemoedigd door deze bodemvondsten, volgde Thom Smekens ook in 2001 de graafwerkzaamheden op zijn land op de voet. De 45 kleurige kralen die hij vond, zetten weer opgravingen in gang, waarmee de geschiedenis van Gilze er honderden jaren bijkreeg. Want archeologen ontdekten een grafveld uit de Merovingische tijd, dat ze op ongeveer vierhonderd jaar na Christus dateerden. Zestien graven legden ze bloot. Behalve de kralen vonden ze een zwaard, een glazen beker, mantelspelden, maalstenen en delen van een gesp.
Maar wat Gilze echt een stuk eerder in de tijd zette, waren honderd meter verderop de sporen in de grond van twee boerderijen uit de ijzertijd. Want dan praat je over de periode 800 tot 250 vóór Christus. De archeologen ontdekten er ook sporen van ‘spiekers’, gebouwtjes met een verhoogde vloer, die als opslagschuur voor akkerproducten dienst deden. De paalsporen en enkele ingegraven voorraadpotten wezen op langere bewoning. De oudheidkundigen troffen ook nog zaden, maalstenen, spinklosjes, botten en stukken aardewerk aan. Het aardewerk maakte een vrij goede datering mogelijk en leverde het bewijs dat er ter hoogte van Gilze sinds vierhonderd jaar vóór Christus bewoning is geweest.
Kralenketting uit de Merovingische tijd, gevonden bij de opgravingen in 2001 (foto archief Heemkring Molenheide)

Bij de ‘Water aan de Warande’ is het de moeite waard om daar naar de zwaluwenwand (een burgerinitiatief) te gaan kijken. Zandafgravingen trekken vaker de aandacht van de kleine oeverzwaluwen.
Bij de Warande werd het witte zand eerst met kraanwagens e.d. naar boven gebracht. Het werd op de oever gebufferd tot behoorlijke bergen. Toen de put vol met bodemwater liep werd gebruik gemaakt van een platbodem en een grote buis. Zo werd het gewonnen zand opgezogen en vervolgens opgespoten om te drogen. Die zandbergen van vrij vast wit zand konden niet direct verwerkt worden. Dat zagen de oeverzwaluwen als een kans. Ze groeven hun nestkokers in de zandwand en maakten gebruikt van hun beschermde status. Dat zagen de natuurliefhebbers op hun beurt ook als een kans. Overleg leverde een kunstmatige oeverzwaluwenwand op.
En met succes. Jaarlijks broedt er een grote kolonie zwaluwen Slechts één jaar hebben ze overgeslagen. Ze werden toen door mensen verstoord die wegens de droogte makkelijk op het broedeiland konden komen.


‘De natuurwaarde van de vliegbasis is groter dan u denkt. Die waarde ligt met name in de aanwezigheid van een grote oppervlakte heischraal grasland, oude hei en de afwisseling met divers opgaand bos. De gronden naast de start- en landingsbanen van het vliegveld hebben een vrij losliggende toplaag, ideaal voor zandbijen De vliegbasis hoort bij de waardevolste natuurterreinen van Brabant.’ (aldus imker Aad van Diemen).
Het kroonjuweel van de basis is de boomkikker, die overigens niet in bomen leeft. Voor het klim- en klauterwerk geeft hij de voorkeur aan braamstruiken (en de aanwezigheid van water uiteraard.
Deze kleine kikker met een groot aaibaarheidsgehalte was als gevolg van o.a. inteelt, bijna uitgestorven, maar ‘mensenhanden’ hebben gezorgd voor nieuw bloed! Er werd voor de boomkikker een succesvolle ecologische verbindingsweg aangelegd van A naar B en omgekeerd. Zeg maar een luxe route met op juiste afstand voedsel- en rustplaatsen.
We nemen de boomkikker inmiddels waar in een veel groter gebied ten zuiden van de vliegbasis.

Zand bestaat uit losse korrels gevormd door erosie. Zeg maar door weer en wind tot gruis vermalen. Het zijn eigenlijk minerale deeltjes van 0,06 tot 2 mm. ontstaan door erosie van rotsen. Ook water (rivier of zee) draagt een steentje bij aan deze erosie. Dit witte zand is waterdoorlatend en daardoor een stevig, compact draagvlak voor bijvoorbeeld een gebouw. Een zandberg kun je niet meer in elkaar drukken.
Zwerfkeien, je komt ze hier overal tegen. Soms deden of doen ze dienst als grenssteen maar even vaak functioneren ze als bescherming voor hoeken en muren van woning en stallen.
Je moet je realiseren dat je hier in de buurt bent van de beroemde (Gilze-)Rijen-breuk. Dat is een breukvlak diep in de aardkorst. Uit dat breukvlak hebben zich in de loop der tijden veel grote keien naar boven gewerkt. Waar kwamen deze keien oorspronkelijk vandaan?

Poosplaats aan de Warande in Gilze, met dichtregels van Silva Ley. In de Tachtigjarige Oorlog bivakeerde nabij deze plek een Spaans leger, tijdens een belegering van Breda.

Kenmerkend voor Gilze zijn de rond het dorp liggende, kleine( nu nog) agrarische gemeenschappen met namen als Bolberg, Horst, Besterd, Lange Reit, Vossenberg, Nerhoven en Verhoven.
Het nabij gelegen sportpark heeft ‘Verhoven’ als naam. Deze naam verwijst naar een groepje verderop gelegen boerderijen (hoeves). Dat ‘verderop’ geeft het verschil aan met het nabij gelegen ‘Nerhoven’.
Meermaals hebben in de gemeente Gilze en Rijen opgravingen indrukwekkende, archeologische vondsten opgeleverd, zoals u hebt kunnen lezen. Laatst nog in 2020; de overblijfselen van vier boerderijen en vier waterputten uit de tijd van Karel de Grote.

Waterput in het centrum van Gilze.
Informatie op deze pagina is mede mogelijk gemaakt door Heemkring Molenheide, Tijdmachinegilzerijen.nl, Natuur- en Landschapsvereniging Gilze en Rijen (NLGR), Barbara Roozen en de gemeente Gilze en Rijen.
Bronnen: ‘Veldnamen in de gemeente Gilze en Rijen deel I’; ‘Gilze van Vossenberg tot Valkenberg’; ‘De historische canon van Gilze en Rijen’; Kwartaalblad De Mulder nr. 42.
